Referenz

NB Wohn- und Gewerbegebäude Entlebuch

Im Gebi­et Lehn in Entle­buch entste­ht derzeit ein viel­seit­ig nutzbares Wohn- und Gewer­bege­bäude. Der Aushub ist abgeschlossen, und der Baumeis­ter hat mit den Bet­onar­beit­en begonnen – die Hochbauar­beit­en sind damit gestartet.

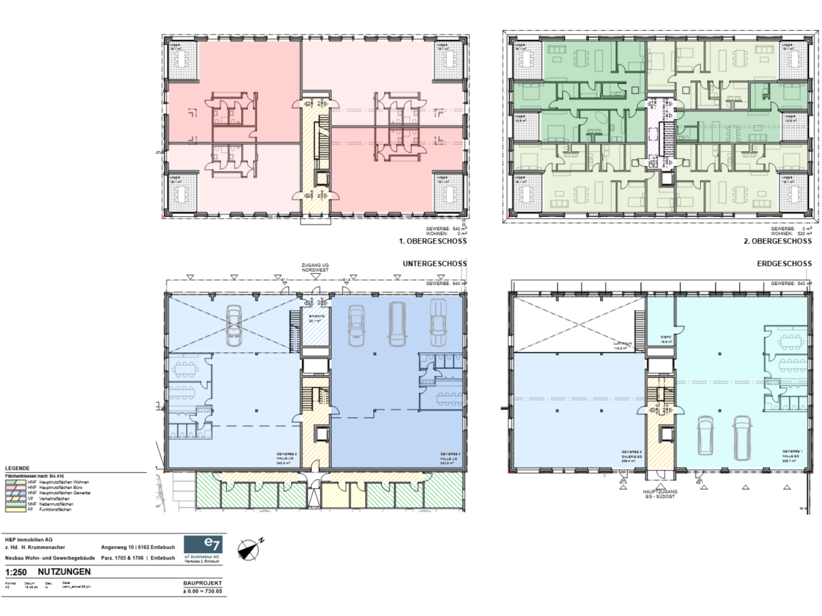
Das viergeschos­sige Gebäude bietet ein bre­ites Nutzungsspek­trum: Im Unter- und Erdgeschoss entste­hen flex­i­bel gestalt­bare Gewer­be­flächen mit grosszügi­gen Raumhöhen. Das erste Obergeschoss ist für Büroflächen vorge­se­hen, welche indi­vidu­ell aus­ge­baut wer­den kön­nen. Im ober­sten Geschoss befind­en sich sechs Woh­nun­gen, jew­eils mit ein­er eige­nen gedeck­ten Log­gia in den Gebäudeecken.

Die Fas­sade wird klar gegliedert gestal­tet und nimmt Bezug auf die unter­schiedlichen Nutzun­gen im Gebäude. Zwei Zugänge, ein­er von der Reng­gstrasse und ein­er von der Kan­ton­sstrasse, erschliessen das Gebäude. Bei­de ver­fü­gen über Vor­plätze mit Parkmöglichkeiten.

Eine Pho­to­voltaikan­lage auf dem Flach­dach liefert Eigen­strom. Das Pro­jekt wird im Rah­men des Gestal­tungs­plans «Lehn» real­isiert und durch den Fach­beirat Entle­buch begleit­et. Qual­ität, Region­al­ität und eine gute Ein­bindung in die Umge­bung ste­hen dabei im Vordergrund.

Kunde

H&P Immo­bilien AG

Ort

Entle­buch

Baujahr

2025 — 2026

Haben Sie Fragen?

Gerne ste­hen wir Ihnen zur Ver­fü­gung und beant­worten Ihre Fragen.