Auf Basis der Ausführungsplanung von Lussi + Partner AG zum Um- und Anbau des Pfarreiheims in Ruswil dürfen wir die Bauleitungsarbeiten ausführen.
Das Pfarreiheim Ruswil, zentrale Begegnungsstätte der Gemeinde, wird umfassend umgebaut und saniert, um den heutigen Anforderungen an Nutzung, Energieeffizienz und Barrierefreiheit gerecht zu werden. Der Standort bleibt dabei unverändert.
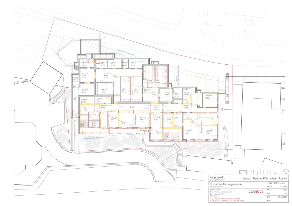
Der Bau aus den 1960er Jahren wird teilweise zurückgebaut und neu strukturiert. Das Untergeschoss bleibt weitgehend erhalten, während Erd- und Dachgeschoss überwiegend neu entstehen.
Neue Treppen und ein Aufzug verbessern die Besucherführung und erfüllen die Brandschutz- sowie Barrierefreiheitsanforderungen. Die Fassade erhält eine klare, vertikal gegliederte Gestaltung, die den öffentlichen Charakter des Gebäudes unterstreicht und sich harmonisch in die Nachbarschaft von Kirche und Pfarrhaus einfügt.
Das Projekt schafft eine moderne, vielseitig nutzbare Begegnungsstätte für die Kirchgemeinde und Dorfvereine, die den historischen Kontext respektiert und den heutigen Ansprüchen gerecht wird. Der Holzbau ist bereits aufgerichtet, und die Bauarbeiten sind im vollen Gange.
Kunde
Katholische Kirchgemeinde Ruswil
Ort
Ruswil
Baujahr
2025–2026
Haben Sie Fragen?
Gerne stehen wir Ihnen zur Verfügung und beantworten Ihre Fragen.